Lindenhof wohnen l leben l gemeinsam !
- Planungsbeginn: 2024
- Baubeginn: 2026
- Bezugsjahr: 2028
- Mitstreiter*innen gesucht: Ja
- Zielgruppe: Keine bestimmte Zielgruppe, Mehrgenerationenwohnen
Kurzbeschreibung
Wir sind eine Gruppe von Menschen, die gemeinschaftorientiertes Wohnen im Zentrum von Lauffen realisieren möchte. Dabei wünschen wir uns eine Gemeinschaft bestehend aus Jungen, Alten, Familien, Singles, Paaren, Einfarbigen und Bunten, aus verschiedenen Kulturen, Menschen mit und ohne Handicap - wichtig ist das Interesse, gemeinsam wohnen bzw. leben zu wollen.
Unser Wohnprojekt soll so bunt und so vielfältig sein wie die Menschen, die darin leben. Deshalb planen wir sowohl unterschiedlich große Wohnungen als auch eine Wohngemeinschaft. Alles barrierefrei.
Wir haben einen Architekten gefunden, der in Übereinstimmung mit städtebaulichem Entwurf und Baurecht einen diskussionsfähigen Entwurf zur äusseren Hülle gefertigt hat.
Die Stadt hat schon mal wohlwollend drüber geschaut.
Seit Sommer 2024 sind wir im Gespräch mit einem Generalunternehmer mit dem Ziel eines "schlüsselfertigen Baus", um die Kosten planbar zu halten.
Die Planungen liegen vor und sind im Bauausschuss des Gemeinderats als grundsätzlich zu befürworten abgenickt.
Die Kosten liegen vor und wir mussten lernen, daß in der aktuellen Fördersituation und Kapitalmarktsituation eine Umsetzung in Form einer neuen Genossenschaft sich nicht darstellen lässt.
Wir sind auf der Suche nach anderen Formen der Umsetzung.
Wir sind auf der Suche nach einem Investor.
Es könnten auch Eigentumswohnungen werden ...
Das Projekt

- Herrenäcker 18
74348 Lauffen am Neckar
Zielgruppen
- Keine bestimmte Zielgruppe
- Mehrgenerationenwohnen
Rechtsform
- Verein
- WEG
- gemeinschaftliches Wohnen zur Miete
Projekttyp
- Hausgemeinschaft (mit abgeschlossenen Wohnungen)
- Clusterwohnen (eigenes Zimmer inkl. Bad/Kochnische + gemeinsame Küche in gemeinsamer Wohnung)
Inhaltliche Merkmale
- Nachbarschaftliche Aktivitäten
- Gegenseitige Hilfe
- Wohnen und Arbeiten
- Ökologische Ausrichtung
- suffizienz - genug ist genug ?
Bewohner*innen
- Unter 20 Jahre: 5
- 20-60 Jahre: 15
- Über 60 Jahre: 15
Größen
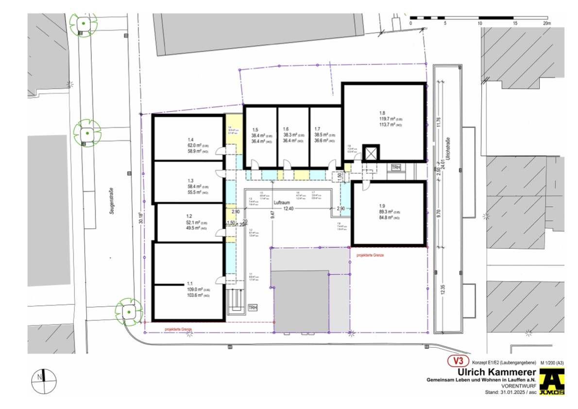
- Grundstücksgröße: 1229 m²
- Wohnfläche gesamt: 1652 m²
- Anzahl Wohnungen: 30
- Gemeinschaftsraum: 50 m²
- Gästewohnung/en: 20 m²
- Gesamte Gewerbefläche: 378 m²
- Anzahl Gewerbeeinheiten: 3
Gebäudeart
- Neubau
Gebäudetyp
- Mehrfamilienhaus/-häuser
Bauliche Merkmale
- Barrierefrei
- Neue Bodenversiegelung vermeiden
gemeinsamer Garten auf dem Dach
Lage
- Stadt
Infrastruktur
- ÖPNV-Haltestelle
- Einkaufsmöglichkeit
- Arzt
- Apotheke
Art der Gewerbeeinrichtungen
- offen
- Arzt?
Grundstückskosten
650000
Baukosten
10000000
Finanzierungsanteile
- KfW
- Private Darlehen
- Private Beteiligungen (nachrangige Darlehen)
Zusätzliche Informationen
Was wollen wir?
- Gemeinschaftlich, nachhaltig, sozial und ökologisch verträglich Wohnen und Leben
- Leben teilen, gemeinsam tun, gemeinsam feiern, …
- Achtsam miteinander umgehen
- Privatsphäre achten
- Gegenseitig unterstützen
- Ressourcen schonen
- Gemeinsam nutzen (Werkstatt, Bibliothek, Veranstaltungsräume, Sharing,…)
- Offen, initiativ und kreativ sein und unsere Fähigkeiten in die Gemeinschaft einbringen
- Räume für Begegnung schaffen
- Uns in das Leben in Lauffen einbringen
- Und vieles, vieles mehr
Wir treffen uns derzeit regelmäßig und arbeiten in unseren Sitzungen an vielfältigen Themen und Fragestellungen, wie:
Organisationsform, Umbau/Neubau, Größe, Anzahl der Wohneinheiten, geeignetes Objekt, aber auch an den unterschiedlichen Wünschen und Vorstellungen des gemeinschaftlichen Wohnens.
Wir freuen uns über/ wir suchen Mitstreiter, Mitdenker, Mitbewohner, die ähnliche Vorstellungen haben, sich mit Herz und Hand einbringen und mit denen wir gemeinsam das Projekt realisieren können.
Du bist neugierig und interessiert? Dann setz dich mit uns in Verbindung.
Zusatz: Wir führen keine "Warteliste". wenn hier einer "wartet" dann sind wir das:
wir "warten" auf Initiative, Engagement, Mitwirkung.




